REQUEST A TOUR If you would like to see this home without being there in person, select the "Virtual Tour" option and your agent will contact you to discuss available opportunities.
In-PersonVirtual Tour

Listed by Gary Reed • BlackStar Realty
$ 1,999,000
Est. payment | /mo
0.52 Acres Lot
$ 1,999,000
Est. payment | /mo
0.52 Acres Lot
Key Details
Property Type Vacant Land
Sub Type Other Residential Land
Listing Status Active
Purchase Type For Sale
MLS Listing ID CROC25257014
Lot Size 0.520 Acres
Property Sub-Type Other Residential Land
Source California Regional MLS
Property Description
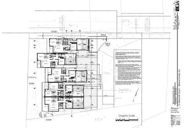
This residential lot has preliminary approved for 5 unit luxury townhomes with the city of Walnut Creek. The included pictures is a rendering of the project and a sample of the preliminary approved plans The project has excellent views to the north from all units.
Location
State CA
County Contra Costa
Zoning D2,BLF,LY
Exterior
Fence None
Utilities Available Electricity - On Site, Telephone - Not On Site
View Panoramic, Valley, City Lights
Others
Tax ID 1832700064
Special Listing Condition Not Applicable

© 2025 MLSListings Inc. All rights reserved.
GET MORE INFORMATION

Sam Spinella
Your Trusted Real Estate Guy | License ID: 01377658
+1(408) 393-9294 | sam@spinellagroup.com






